logo
logo
  • خانه
  • ایده‌ها
  • طراح‌ها
  • آگهی‌ها
  • بلاگ
هوش مصنوعیهوش مصنوعیایدهایدهخانهخانهآگهی استخدامیآگهی استخدامیورود | ثبت نامورود | ثبت نام
logo
  • خانه
  • آگهی‌ها
  • طراح‌ها
  • ایده‌ها
instagramwhatsapp

تمام حقوق این وب‌سایت برای شرکت پونتو محفوظ است.

Enamd
  1. پونتو
  2. لیست طراحان
  3. دفتر معماری زند حریرچی
cover
designer-avatar
دفتر معماری زند حریرچیگروه معماری
درباره من
پروژه‌ها
جزییات کسب وکار
آگهی‌های استخدام

درباره من

تلاش ما این است که به بستر، عملکرد و زیبایی‌شناسی معماری به‌طور هم‌زمان بپردازیم.

مهارت‌ها

AutoCad
Rhino
کار تیمی

استان محل زندگی

تهران

جوایز

رتبه سوم جایزه بزرگ معمار 1385 گروه مسکونی
تقدیر شده جایزه بزرگ معمار 1384 گروه بازسازی

گالری پروژه‌ها

همه فیلترها
کاربری
سبک
۸ پروژه از ۰ پروژه

۱۶ / ۱

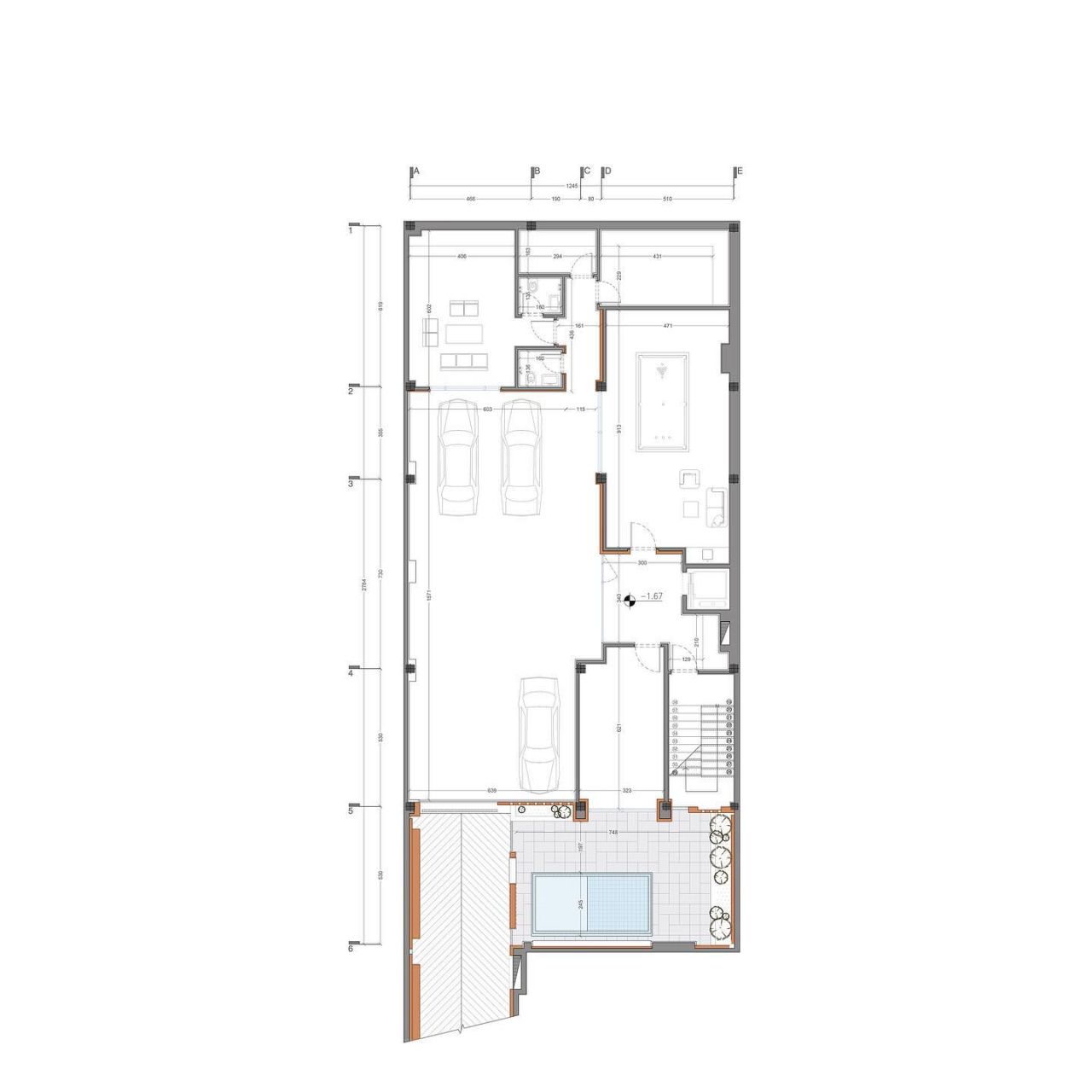
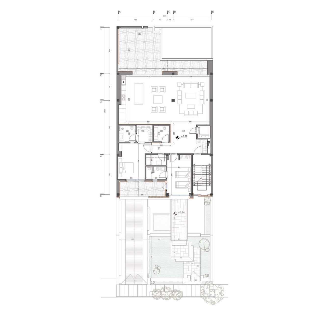
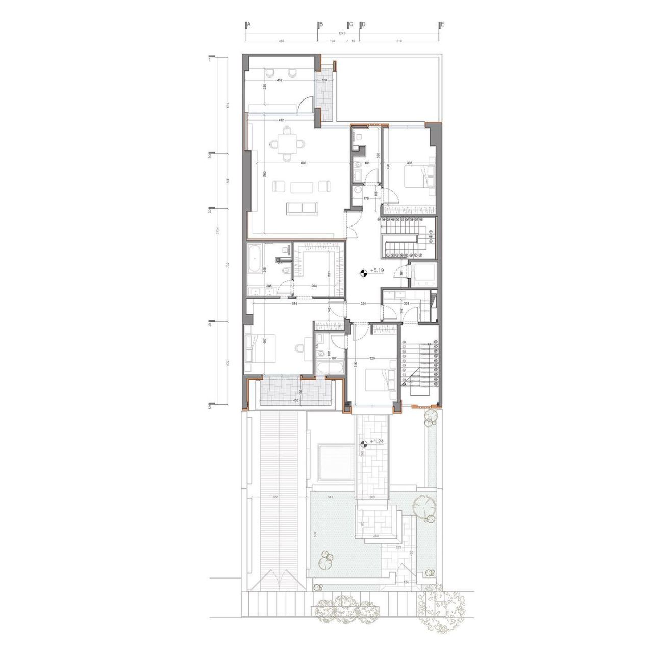
بازسازی ساختمان مرکزی پاژنگ خودرو

119
Pajang Khodro Headquarter (Renovation) │ Client: Pajang Khodro Industrial │ Location: Tehran, Tehran │ Scale: Medium

۸ / ۱

گاندی

185
Gandhi Office Building │ Client: Abad Gostar-E Mehregan │ Location: Tehran, Tehran │ Scale: Medium

۱۸ / ۱

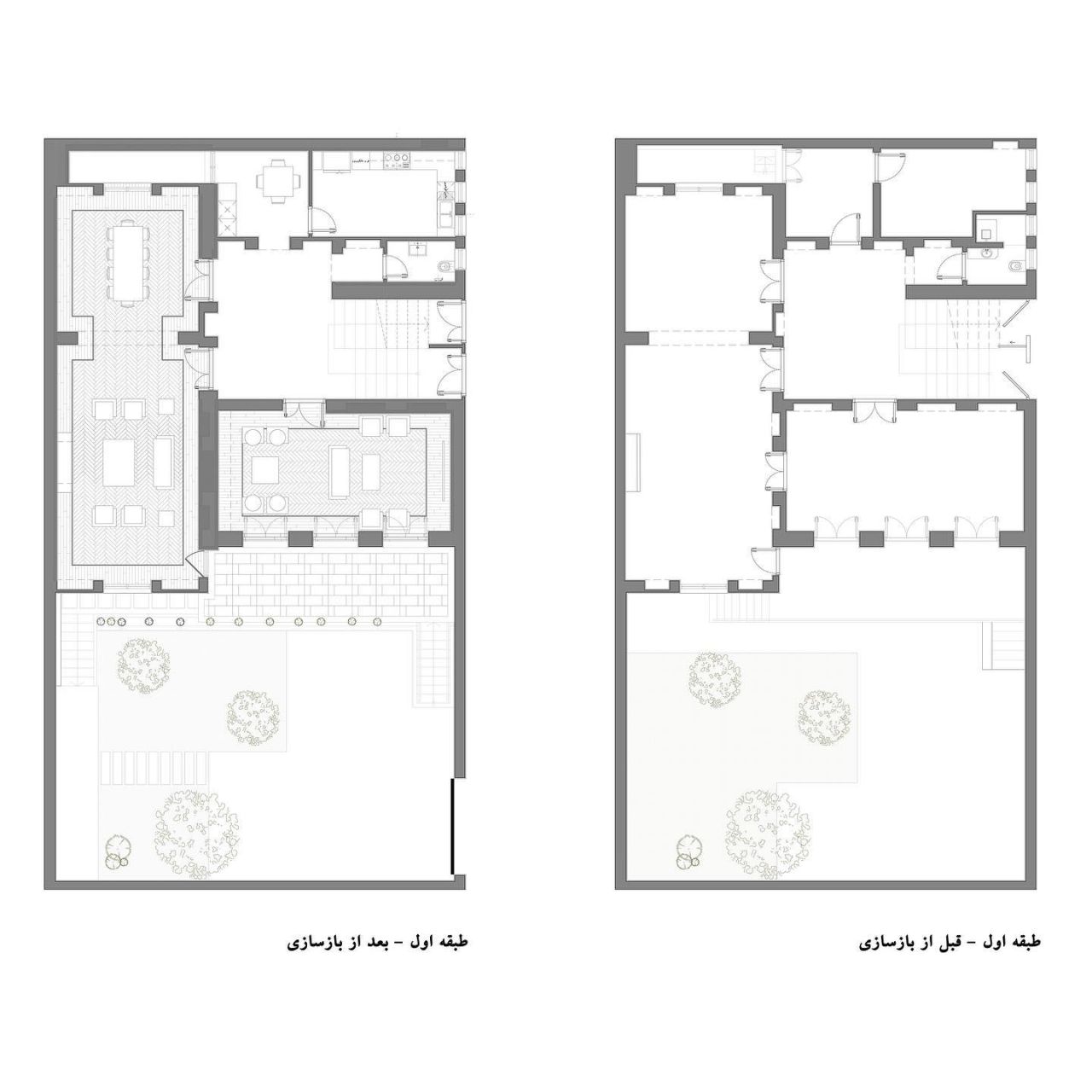
بازسازی مسکونی خردمند

201
Kheradmand renovation │ Location: Tehran │ Scale: Small │ Photographer: @deedstudio

۱۳ / ۱

ورودی شهرک مهرگان

133
Entrance of Mehregan Neighborhood │ Location: Mazandaran │ Scale: Small │ Photographer: @deedstudio │ Lighting: @noorsaform │ Landscape: @contextlogicarchitects │ Prefabrication technique

۱۹ / ۱

خانه آبان

171
Aban House │ Location : Tehran, Tehran │ Scale : Medium │ Photographer : @sph.photography

۱۸ / ۱

بازسازی A.S.P

196
A.S.P Renovation │ Client: Mr. Miri │ First Prize @honare_memari Award │ Location: Tehran, Tehran │ Scale: Small │ Photography : @deedstudio

۵ / ۱

پروژه سه ویلا

183
Sevilla │ Location: Gilan │ Scale: Medium │ Photographer: @deedstudio │ Lighting: @noorsaform │ Landscape: @contextlogicarchitects │ Horticultural Contractor: @goliran.agro

۴ / ۱

پروژه اقاقیا

314
Aghaghia neighborhood │ Location: Mazandaran | Mehregan town │ Scale: Medium │ photographer: @deedstudio

جزییات کسب و کار

نام شرکت

دفتر معماری زند حریرچی

شماره تماس

۰۲۱۸۸۰۰۲۶۶۰

وبسایت

https://harirchi.com

آدرس

تهران، امیرآباد شمالی

آگهی‌های استخدام

سی جی آرتیست

1404/06/09

ایجاد شده توسط دفتر معماری زند حریرچی
تهران، امیرآباد
تمام‌وقت

مهارت‌های کلیدی

  • AutoCad
  • Rhino
  • Corona
  • Adobe Photoshop

شرح وظایف

  • تسلط به یک نرم افزار مدل سازی
  • تسلط به یک نرم افزار رندرینگ
  • آشنا به فتوشاپ و اتوکد
  • ساعت کاری: 9 صبح تا 6 بعد از ظهر
مشاهده کامل